Phone
407-880-2333
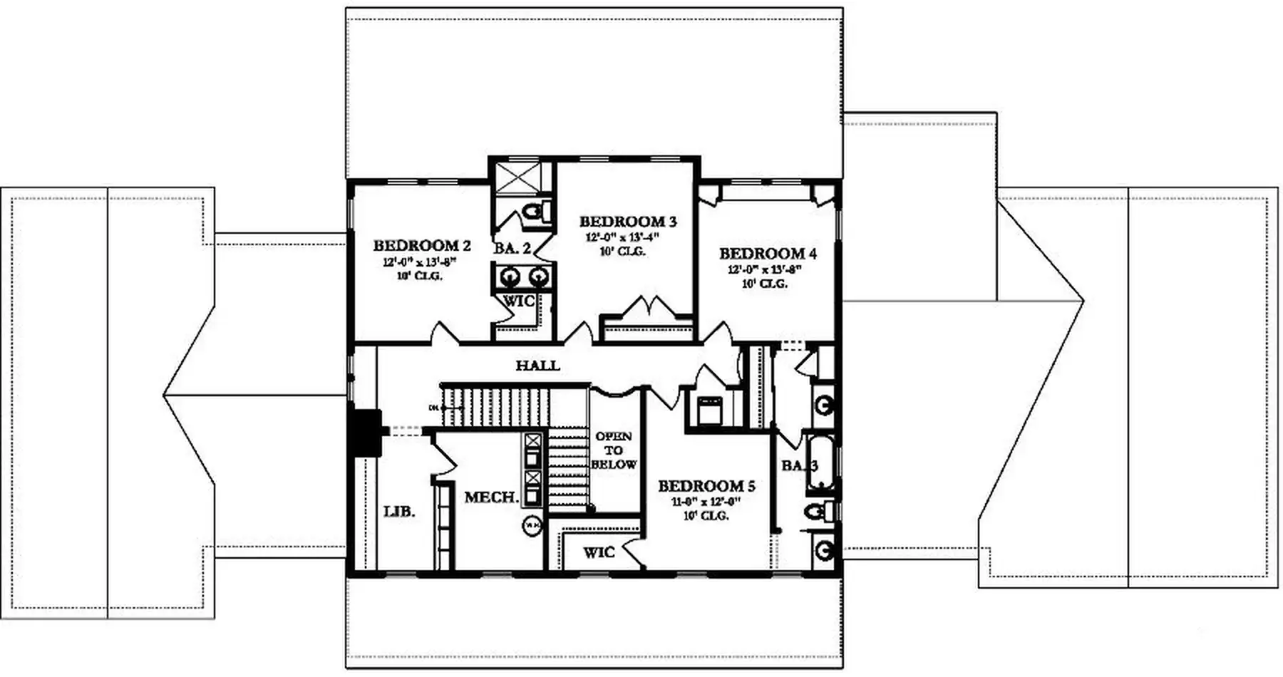
It’s all about the kitchen in this beautiful Colonial-style home. It’s got two spacious islands: one with a snack bar for family and friends to sit and chat, and the other with a veggie-rinsing sink and lots of room to chop. The family room is totally open, with two sets of double doors leading to the back porch and outdoor kitchen. A formal living and dining room are ready for special entertaining. Conveniently located on this floor, the owner’s suite invites you to relax in the oversize shower, the window-side tub, or next door in the quiet study. You’ll love the extra storage throughout the house, especially the mud room. Kids sleep upstairs, where there are four bedrooms and a library that’s great for homework
| Plan Type | 10 Sets, 5 Sets, 8 Sets, CAD, Electronic |
|---|---|
| Levels | |
| Bedrooms | |
| Bathrooms | |
| Half Bathrooms | |
| Garage Spaces | |
| Basement SQFT | |
| First Floor SQFT | |
| Second Floor SQFT | |
| Third Floor SQFT | |
| Total Living SQFT | |
| Lanai SQFT | |
| Garage SQFT | |
| Bonus SQFT | |
| Total Roofed SQFT | |
| Width | |
| Depth | |
| Ceiling Height | |
| Roof Pitch | |
| Ridge Height | |
| Roof Load | |
| Roof Framing | |
| Exterior Framing | |
| Window Type | |
| Vehicle Location | |
| Exterior Finish | |
| Style | |
| Region | North Central, Northeast, Pacific Northwest, Pacific Southwest, South Central, Southeast |
| Other Features | Covered Front Porch, Covered Rear Porch, Garage, Kitchen Island, Kitchen Peninsula Bar, Office/Study, Open Floor Plan, Split Bedrooms, Walk-In Closets |









